Hamburg Süd

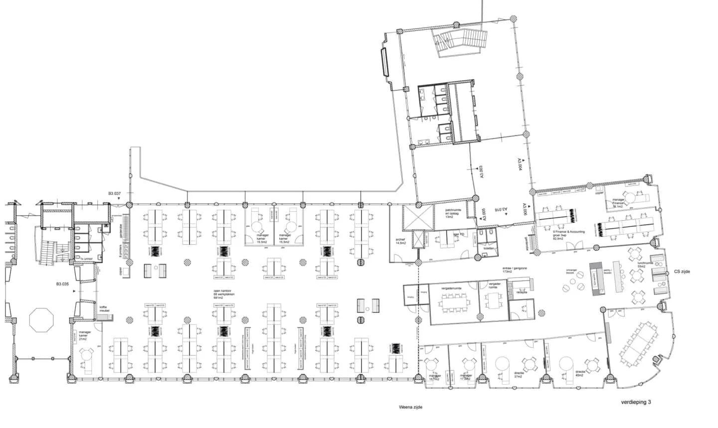
Het containerbedrijf Hamburg Süd had haar trossen losgegooid om met het kantoor te vertrekken uit de mooie Waalhaven in Rotterdam Oost. De nieuwe locatie was het Groothandelsgebouw in het centrum van Rotterdam. Uitgangspunt was om het (Waal)havengevoel terug te laten komen in het nieuwe interieur. De diepe ruimte vanaf de gevel van de verdieping gaf mogelijkheden tot een programma in het midden van de vloer. Studio Biek plaatste hier twee 1:1 replica’s van een 40 ft container waarin vergaderruimtes, stiltewerkplekken en de receptie opgenomen werden. Als afscheiding tussen het kantoor en de lunchruimte is een keukenwand geplaatst met een vitrine. Met daarin een schaalmodel van één van de schepen. De lunchruimte en boardroom geven vanuit de hoek een prachtig uitzicht op het centraal station. De containers geven de medewerkers en bezoekers associaties met de haven midden in de stedelijke omgeving van Rotterdam.

 
  • project Hamburg Süd
  • location Groothandelsgebouw Rotterdam
  • client Hamburg Sud Rotterdam
  • size 1400m2
  • completed augustus 2016